| NIVEAU | PIÈCE | SURFACE |
Appartement rénové 72m², 3 pièces en vente à Alencon - 98 500 € *
- Ref 9201110314
- Ref 769
- Type Appartement rénové
- Ville ALENCON
- Pièces 3
- Chambres 2
- Surface 72 m²
- Terrain NC
- Prix :
98 500 € *
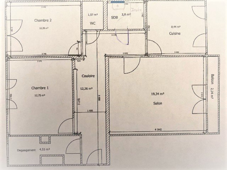
EXCLUSIVITE - ALENCON (61000) - Idéalement situé en plein cœur du centre ville, quartier très prisé - Résidence sécurisée avec interphone, digicode - Au 9ème et DERNIER ETAGE avec ascenseur, appartement 3 Pièces (72 m2 carrez), entièrement RENOVE, il se compose d'une entrée, d'un salon séjour lumineux de 20 m2 avec un accès au balcon terrasse orienté SUD OUEST, d'une cuisine séparée de 9 m2, aménagée et équipée (possibilité cuisine ouverte), d'un dégagement / dressing, de 2 CHAMBRES (13 m2 et 10 m2), d'une salle d'eau avec douche italienne, de toilettes séparés. Interphone - Double vitrage, Traversant, Exposition Sud Ouest, Chauffage et eau froide / chaude collectifs. Une CAVE et un EMPLACEMENT DE PARKING COUVERT complètent ce bien. LOCAL VELOS au sous sol. Proche de toutes les commodités : au pied des commerces, du marché, des écoles et transports. A 10 min à pied de la gare d'Alençon.
VUE PANORAMIQUE et DEGAGEE / DERNIER ETAGE, LUMINEUX et ENSOLEILLE, AUCUN VIS A VIS - AU CALME (les 2 chambres sur jardin).
Coup de coeur assuré.
Pour toutes demandes de renseignements, contactez le 06 63 55 66 08
* Honoraires charge vendeur.
Ce bien ne figure plus au catalogue car il a été vendu.
- Bien
- 48.4322434
- 0.0894957999996
- /images/ggmap-marker.png
- click
-
Appartement rénovéALENCON - 72 m²
cette annonce à un ami
Veuillez réessayer à nouveau








































