| NIVEAU | PIÈCE | SURFACE |
Appartement rénové 100m², 5 pièces en vente à Levallois Perret - 1 100 000 € *
- Ref 9201110480
- Ref 803
- Type Appartement rénové
- Ville LEVALLOIS PERRET
- Pièces 5
- Chambres 3
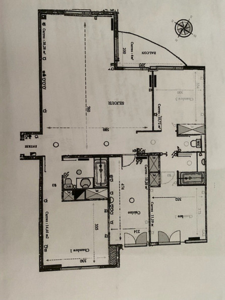
- Surface 100 m²
- Terrain NC
- Prix :
1 100 000 € *
Exclusivité – LEVALLOIS-PERRET (92300) - Adresse prisée, proche des commerces, écoles et transports. Dans résidence de standing moderne et sécurisée, au 5ème étage avec ascenseur, bel appartement de 101 m2 (97 m2 carrez), entièrement REFAIT en 2021. Il se compose d’un spacieux salon / salle à manger de 40 m2 ouvrant sur un balcon terrasse orienté Sud-Est, d’une cuisine dinatoire (neuve) aménagée et équipée, d’une SUITE PARENTALE avec salle de bains et toilettes, et d’un 2ème espace nuit avec dégagement, 2 CHAMBRES avec rangements intégrés (possibilité 4ème CHAMBRE ou bureau), salle de bains et des toilettes séparés.
Vous pourrez profiter d'une très belle lumière avec vue dégagée et balcon-terrasse sur séjour, au calme. Vous serez séduits par les volumes de la pièce à vivre. Ce bien conviendra parfaitement à une famille cherchant un appartement moderne dans un lieu où il fait bon vivre.
Plan sans aucune perte de place avec des espaces enfants / parents distincts. Nombreux rangements intégrés – Double vitrage – Volets roulants – Vidéo surveillance – Ascenseur – Parquet – Cuisine dinatoire neuve – Peinture récente.
Traversant et lumineux – Étage élevé – Balcon Terrasse sur séjour.
AUCUN TRAVAUX A PREVOIR
Le bien dispose d'une CAVE et de 2 grandes places de PARKING privées en sous-sol.
Situé à proximité des commerces, restaurants, à 5 min des écoles, des transports (bus et métro ligne 3 – station Pont de Levallois Bécon à 2 min à pied). Proche de l’Ile de la Jatte.
VISITE VIRTUELLE sur demande.
* Honoraires charge vendeur.
Ce bien ne figure plus au catalogue car il a été vendu.
- Bien
- 48.8985584006
- 2.28082180023
- /images/ggmap-marker.png
- click
-
Appartement rénovéLEVALLOIS PERRET - 100 m²
cette annonce à un ami
Veuillez réessayer à nouveau

































