| NIVEAU | PIÈCE | SURFACE |
Maison 280m², 10 pièces en vente à Saint Prix - 880 000 € *
- Ref 9201111876
- Ref 1043
- Type Maison
- Ville SAINT PRIX
- Pièces 10
- Chambres 7
- Surface 280 m²
- Terrain 360 m²
- Prix :
880 000 € *
SAINT-PRIX (95390) – RARE - Maison d'exception, cachet de l’ancien, en plein cœur du vieux village.
Elle se compose :
- Au rez-de-chaussée :d'une entrée, de belles pièces de vie avec une salle à manger cheminée, une cuisine de près de 30 m2 avec tomettes au sol et un accès de plain-pied au JARDIN. Un bureau, des toilettes avec point d’eau et une buanderie complètent ce niveau.
- Au premier étage : d'un grand salon TRAVERSANT de près de 60 m² avec une VUE PANORAMIQUE INCROYABLE. Parquet ancien en chêne, 2 belles CHAMBRES, un dressing, et une salle de bains avec toilettes.
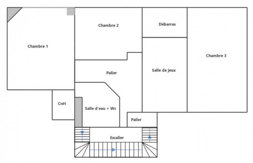
- Au 2ème étage, 3 CHAMBRES, une salle de jeux ou bureau, une salle d'eau avec toilettes et un débarras.
Caves voutées anciennes - Cachet de l’ancien – Tomettes - Parquet ancien en chêne - Cheminée
JARDIN joliment végétalisé offrant une VUE PANORAMIQUE sur Paris.
Double box pour 2 voitures + emplacement sous un porche pour voitures / 2 roues.
Un atelier complète ce bien.
Vue incroyable sur tout Paris (Sacré Cœur, Tour Eiffel, La Défense, …)
A proximité immédiate de la forêt de Montmorency, accessible à pied en moins de 5 min
Pour toute demande de renseignements et visites, contactez Caroline LOGEAIS - Agent immobilier porteur de la carte T - 5 PIECES ET PLUS, 1ère agence immobilière spécialisée dans les biens familiaux de minimum 3 CHAMBRES (Paris, Ile-de-France / Bordeaux, Bassin d'Arcachon) www.5piecesetplus.com (réf. 9201111876) Prix TTC et Honoraires à charge vendeur TTC .
Prix TTC et Honoraires à charge vendeur TTC
* Honoraires charge vendeur.
- Bien
- 49.024022
- 2.2736414
- /images/ggmap-marker.png
- click
-
MaisonSAINT PRIX - 280 m²
cette annonce à un ami
Veuillez réessayer à nouveau









































