| NIVEAU | PIÈCE | SURFACE |
- 149 000 € *
- Ref 9201111893
- Ref 1049
- Type Maison
- Ville FONTAINE SIMON
- Pièces 6
- Chambres 4
- Surface 160 m²
- Terrain 2640 m²
- Prix :
149 000 € *
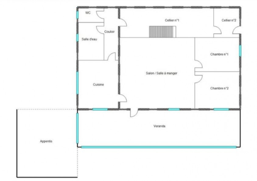
FONTAINE-SIMON (28240) – Au cœur du Parc naturel régional du Perche, Maison de campagne d'environ 160 m2, en lisière de forêt.
- Au rez-de-chaussée, un salon-cheminée, une grande cuisine dinatoire, 2 CHAMBRES, une salle d'eau, des toilettes séparées. Belle VERANDA offrant un cadre de vie unique et une vue imprenable sur le jardin.
- Au 1er étage, 2 CHAMBRES, des toilettes séparées, un grenier à aménager.
Chauffage gaz de ville – Tout-à-l'égout (assainissement conforme) - TOITURE NEUVE (mars 2025)
A RENOVER – BEAU POTENTIEL
Jardin arboré de plus de 2 640 m2 au calme avec beaux arbres fruitiers (cerisier, noyer, poiriers, pommiers, …)
DEPENDANCES, ATELIER - Carport 2 voitures
VUE DEGAGEE sur jardin et campagne.
Proche de toutes les commodités : commerces du village (boucherie, poste, épicerie, … Camping et activités de loisirs proches (téléski nautique et parc aquatique)
Proche gare de La Loupe reliant Paris, à moins de 10 km, desservie par des TER depuis Paris Montparnasse, trajets d'environ 1h20 min pour Paris . Idéal pour rejoindre également Chartres, Dreux et l'agglomération eurélienne.
Bretoncelles (~12 km),
Courville-sur-Eure (~17 km),
Nogent-le-Rotrou (~25 km)
En voiture, environ 1h40 min de Paris
A voir très vite !
Pour toute demande de renseignements et visites, contactez Caroline LOGEAIS - 5 PIECES ET PLUS, 1ère agence immobilière spécialisée dans les biens familiaux de minimum 3 CHAMBRES (Paris, Ile-de-France / Bordeaux, Bassin d'Arcachon) www.5piecesetplus.com (réf. 9201111893) Prix TTC et Honoraires à charge vendeur TTC .
Prix TTC et Honoraires à charge vendeur TTC
Les informations sur les risques auxquels ce bien est exposé sont disponibles sur le site georisques.gouv.fr
* Honoraires charge vendeur.
- Bien
- 0
- 0
- /images/ggmap-marker.png
- click
-
MaisonFONTAINE SIMON - 160 m²
cette annonce à un ami
Veuillez réessayer à nouveau



































