| NIVEAU | PIÈCE | SURFACE |
Appartement bourgeois 130m², 6 pièces en vente à Paris 8eme Arrondissement - 1 795 000 € *
- Ref 920113851
- Ref 1054
- Type Appartement bourgeois
- Ville PARIS 8EME ARRONDISSEMENT
- Pièces 6
- Chambres 4
- Surface 130 m²
- Terrain NC
- Prix :
1 795 000 € *
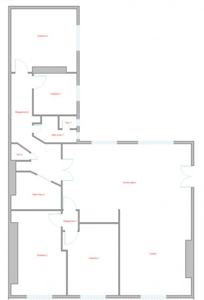
Exclusivité - PARIS 8EME (75008) - Proche Avenue de Friedland - Dans immeuble haussmannien de standing, au 5ème étage avec ascenseur, bel appartement familial de 130 m2. Il se compose d'une entrée / grande pièce de réception de plus de 50 m2 avec salon / salle à manger / cuisine ouverte, TRAVERSANT et LUMINEUX, donnant sur BALCON (> 8m2) avec jolie vue dégagée, 4 grandes CHAMBRES (17 m2, 14 m2, 12 m2 et 10 m2) dont 2 avec accès au balcon, deux salles d'eau / buanderie, 2 toilettes.
LUMINEUX et ENSOLEILLE (exposition Sud et Est) - 5ème étage, AU CALME.
Porte blindée - Double vitrage - Chauffage individuel gaz -
Belle hauteur sous plafond - Cheminées. Balcon
Une grande CAVE de 25 m2 complète ce bien.
Un BOX possible en sus.
Proche de toutes les commodités : écoles, commerces et transports (métros ligne 1, 2, 6, 9) et RER A < 10 min à pied.
5 PIECES ET PLUS, 1ère agence immobilière spécialisée dans les biens familiaux de minimum 3 chambres (Paris, Ile de France et Bordeaux, bassin d'Arcachon) - www.5piecesetplus.com (réf. 920113851) Prix TTC et Honoraires à charge vendeur TTC .
Bien soumis au statut juridique de la Copropriété. Nb de lots : 11. Charges annuelles de copropriété (Montant moyen annuel quote-part du budget prévisionnel vendeur) : 3 940 €. Pas de procédure en cours.
Prix TTC et Honoraires à charge vendeur TTC
Les informations sur les risques auxquels ce bien est exposé sont disponibles sur le site georisques.gouv.fr
Pour toute demande de renseignements et visites, contactez Caroline LOGEAIS - Agent immobilier porteur de la carte T
** Inter-cabinet bienvenu : travaillons ensemble pour des transactions réussies et la satisfaction de nos clients **
5 PIÈCES ET PLUS est membre du GNI - Groupement National des Indépendants, un réseau qui valorise les meilleurs agents immobiliers de France, ceux qui placent le professionnalisme, la qualité de service et l'engagement au cœur de leur métier.
10 ans après sa création, 5 PIECES ET PLUS est référencée depuis 2024 dans le Guide National de l'Immobilier, une véritable distinction pour les agences qui s'impliquent pleinement dans la réussite des projets immobiliers de leurs clients.
Parce que votre projet est aussi un peu le nôtre, nous mettons tout en œuvre pour vous offrir une expérience unique et sur-mesure !
5 PIECES ET PLUS, agence FNAIM, gage de sérieux et professionnalisme. Agence responsable et engagée, sécurité juridique, veille réglementaire permanente, formation continue, … La garantie d’un haut niveau de compétence. FNAIM, 1er syndicat immobilier de France.
* Honoraires charge vendeur.
- Bien
- 48.874285
- 2.30234
- /images/ggmap-marker.png
- click
-
Appartement bourgeoisPARIS 8EME ARRONDISSEMENT - 130 m²
cette annonce à un ami
Veuillez réessayer à nouveau





























