| NIVEAU | PIÈCE | SURFACE |
Appartement en résidence 69m², 3 pièces en vente à Paris 19eme Arrondissement - 480 000 € *
- Ref 9201111924
- Ref 1029
- Type Appartement en résidence
- Ville PARIS 19EME ARRONDISSEMENT
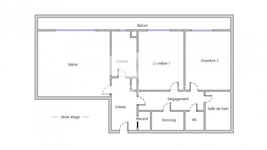
- Pièces 3
- Chambres 2
- Surface 69 m²
- Terrain NC
- Prix :
480 000 € *
EXCLUSIVITE - PARIS (75019), Quartier Flandre-Aubervilliers / Villa Curial – à 5 min du métro Riquet (ligne 7), à proximité des crèches, écoles, commerces et espaces verts. Au sein d’une résidence sécurisée, bel appartement en très bon état général de 67 m2 au 7ème étage/10 avec ascenseur offrant une vue dégagée. Il se compose d’une entrée, d’une grande pièce de vie avec un balcon (exposition Est), 1 cuisine séparée aménagée et équipée (POSSIBILITE US), 2 CHAMBRES, nombreux rangements, 1 salle de bain, toilettes séparés.
1 cave et 1 box (niveau -2) accessibles directement par l’ascenseur complètent le bien.
CALME et LUMINEUX, vue dégagée, nombreux rangements.
TRES BON ETAT GENERAL.
Chauffage collectif au gaz, double vitrage, DPE D, gardien.
Au cœur du quartier Flandre, la résidence est idéalement située à proximité immédiate de toutes les commodités : écoles mitoyennes à la résidence, commerces, loisirs avec le Centre culturel Le 104 à 3 minutes à pied ou Le Bassin de la Villette à quelques minutes.
Transports : Ligne 7 : métro Riquet à 400m, Crimée à 500m, nombreux bus, gare RER E Rosa park à 10 minutes à pieds.
Prix TTC et Honoraires à charge vendeur TTC
Agent commercial
Les informations sur les risques auxquels ce bien est exposé sont disponibles sur le site georisques.gouv.fr
Bien soumis au statut juridique de la copropriété. Nb de lot :592. Charges annuelles de copropriété (Montant moyen annuel quote-part du budget prévisionnel vendeur) : 3864.00 €.
* Honoraires charge vendeur.
- Bien
- 48.8906136
- 2.3867083
- /images/ggmap-marker.png
- click
-
Appartement en résidencePARIS 19EME ARRONDISSEMENT - 69 m²
cette annonce à un ami
Veuillez réessayer à nouveau





















